Strona tymczasowo niedostępna...

3-POK | 74 m2 | WILANÓW - AUGUSTÓWKA

Mieszkanie na sprzedaż
1 350 000,00 PLN , Pow. 75 m2
Drukuj ofertę
Drukuj ofertę
Typ nieruchomości:
Mieszkanie
Powierzchnia:
75 m2
Typ transakcji:
sprzedaż
Liczba pokoi:
3
Lokalizacja:
Warszawa Wilanów
Rok budowy:
2019
Piętro:
2 na 4
Numer oferty:
34964469926
Cena za m2:
18 000,00 PLN
Na sprzedaż pięknie wykończone, 3-pokojowe mieszkanie o powierzchni 73,88 m2 z dużym balkonem. Mieszkanie znajduje się na zemkniętym osiedlu w 4-piętrowym budynku z 2019 roku położonym na Warszawskim Wilanowie - Augustówka. Do mieszkania przynależy miejsce postojowe w garażu podziemnym oraz komórka lokatorska. W mieszkaniu zamontowana jest klimatyzacja.

LOKALIZACJA:
- w budynku: sklep Żabka i prywatne przedszkole
- przystanek autobusowy: po drugiej stronie ulicy - 50 m
- rezerwat przyrody Jeziorko Czerniakowskie - 500 m
- dwa ogrodzone wybiegi dla psów - 850m
- klub squash & badminton, restauracja - 200 m
- galeria Sadyba Best Mall - 2,2 km 
 
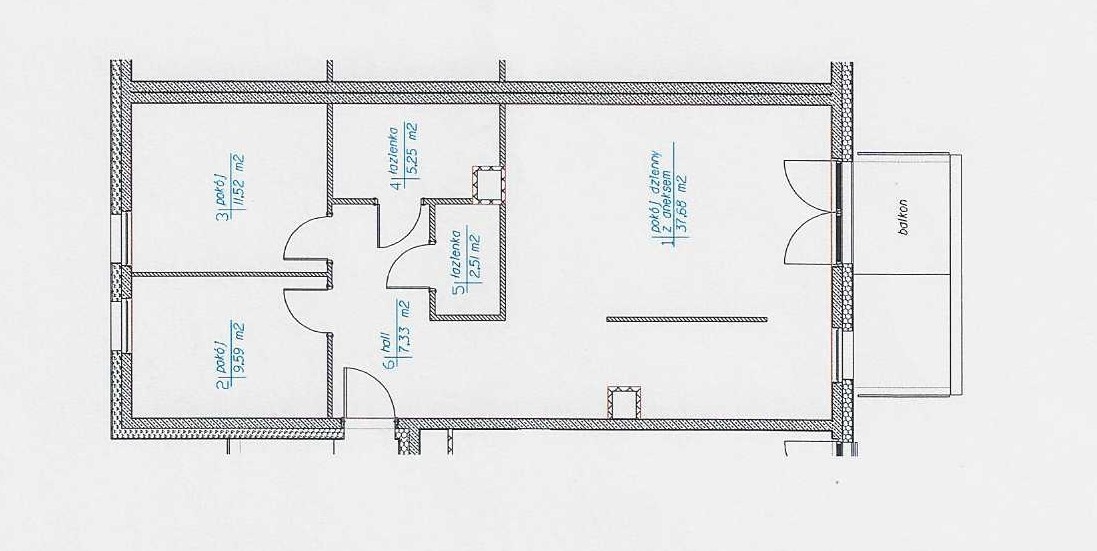
ROZKŁAD POMIESZCZEŃ:
- salonu z aneksem kuchennym (oddzielonym ścianką) - 37,68 m2
- sypialnia 1 - 11,52 m2
- sypialnia 2 - 9,59 m2
- łazienka - 5,25 m2
- spiżarnia/ pralnia - 2,51 m2
- hol - 7,33 m2
- balkon - 7,46 m2
 
DODATKOWE INFORMACJE:
- osiedle zamknięte, monitorowane,
- plac zabaw na terenie zamkniętym,
- wózkownia/ rowerownia dla mieszkańców,
- klimatyzacja,
  
CENA: 1 350 000 zł
Miejsce postojowe w garażu podziemnym - dodatkowo płatne: 40 000 zł
Komórka lokatorska własnościowa 2,93m2 - dodatkowo płatna: 10 000 zł

Osoby zainteresowane zapraszam do kontaktu. 
Nieprawidłowy adres E-mail