Strona tymczasowo niedostępna...

2 pok w CENTRUM! możliwość aranżacji**obok metro!

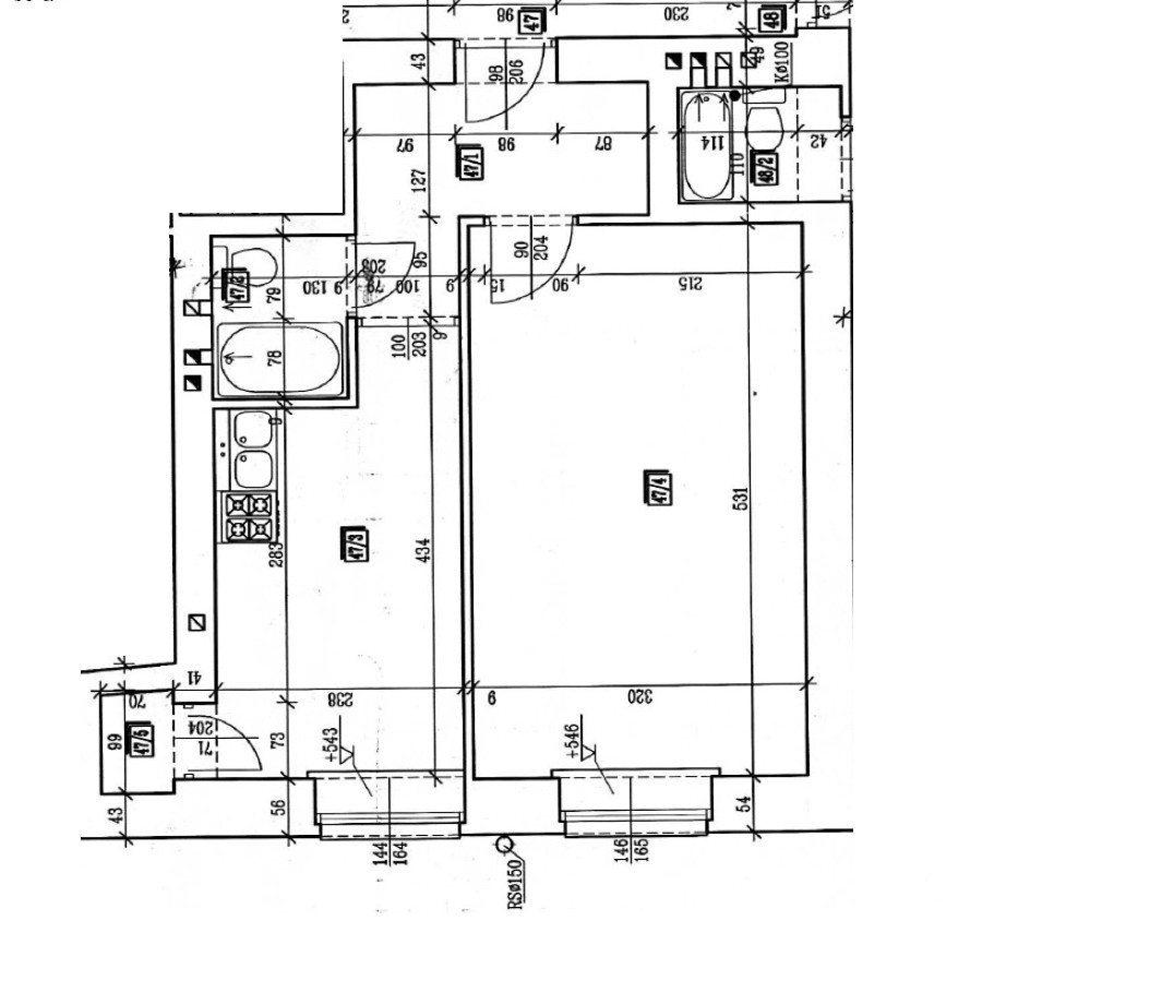
Mieszkanie na sprzedaż
678 999,00 PLN , Pow. 34 m2
Drukuj ofertę
Drukuj ofertę
Typ nieruchomości:
Mieszkanie
Powierzchnia:
34 m2
Typ transakcji:
sprzedaż
Liczba pokoi:
2
Lokalizacja:
Warszawa Śródmieście , Elektoralna
Rok budowy:
1950
Piętro:
2 na 4
Numer oferty:
34964471417
Cena za m2:
19 970,56 PLN
Polecam atrakcyjne, rozkładowe jednopokojowe mieszkanie położone w odległości 300 m od Ogrodu Saskiego. Mieszkanie położone w ścisłym CENTRUM!!
IDEALNE JAKO INWESTYCJA I DO ZAMIESZKANIA

Obszar Mirowa znajduje się na terenie dawnej jurydyki Wielopole. Nazwa pochodzi od nazwiska Wilhelma Miera, dowódcy regiment Gwardii Konnej Koronnej (zwanej Mirowską) i twórcy wzniesionych w latach 1730-1732 Koszar Gwardii Konnej Koronnej zwanych też Koszarami Mirowskimi, od których później nazwano plac Mirowski i Hale Mirowskie. W latach 1949-1960 zbudowano osiedle mieszkaniowe Mirów zaprojektowane przez Tadeusza Kossaka z zespołem. Jest ono położone między ulicami: al. „Solidarności”, Orlą, Elektoralną, Chłodną i Żelazną.

MIESZKANIE WYMAGA GENERALNEGO REMONTU!
WYKOŃCZENIE:

Grafika stanowi wirtualny projekt wykończenie wnętrza z zachowaniem realnych wymiarów przestrzeni i umeblowania.
Możliwość zamówienia i realizacji wykończenia przez renomowaną firmę.

Składa się z następujących pomieszczeń:
1. Kuchni
2. Spiżarni
3. Pokoju dziennego
4. Łazienki
5. Przedpokoju

Mieszkanie jest ciche i posiada spokojne sąsiedztwo.
Pokoje są bardzo dobrze doświetlone. Ekspozycja Południowa. Wysokość lokalu 270 cm.

W bliskiej okolicy znajdują się liczne sklepy, restauracje, piekarnia, czy szkoły podstawowe i licea.

Księga Wieczysta - odrębna własność.

Spokojna okolica.
Zrewitalizowana infrastruktura zapewnia sprawną komunikacje. W bliskiej okolicy znajdują się liczne sklepy, restauracje, piekarnia, czy szkoły podstawowe i licea.

NAJBLIŻSZA OKOLICA:
Ogród Saski - 300 m
Park Mirowski - 50 m
Ogród Krasińskich - 800 m


WYŚMIENITA KOMUNIKACJA MIEJSKA:
Przystanki 100 metrów od bloku
Tramwaje: 
HALA MIROWSKA 17, 33, 76
PL BANKOWY 4, 15, 18, 35

- Metro RATUSZ ARSENAŁ - 5 minut
- Metro ŚWIĘTOKRZYSKA - 10 minut
- Metro RONDO ONZ - 5 minut



- Uczelnie Wyższe:
Politechnika 10 min (bezpośrednie połączenie),
Uniwersytet Warszawski 15 min
Szkoła Główna Handlowa 15 min (bezpośrednio połączenie),


Zapraszam na bezpośrednią prezentację nieruchomości. W razie pytań służę pomocą.
Nieprawidłowy adres E-mail