Strona tymczasowo niedostępna...

Apartament na Bielanach 2 pokojowy

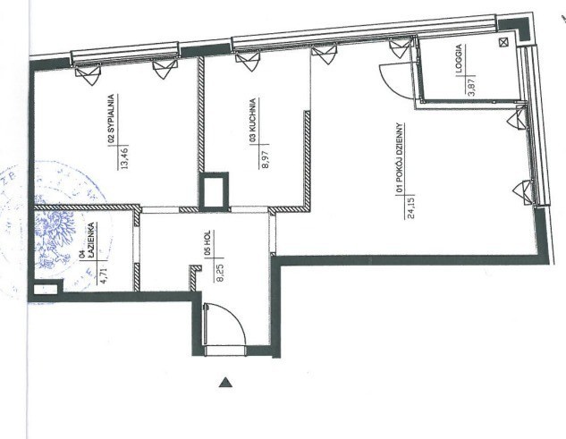
Mieszkanie na sprzedaż
1 320 000,00 PLN , Pow. 61,91 m2
Typ nieruchomości:
Mieszkanie
Powierzchnia:
61,91 m2
Typ transakcji:
sprzedaż
Liczba pokoi:
2
Lokalizacja:
Warszawa Bielany , Jana Kochanowskiego
Rok budowy:
2011
Piętro:
8 na 8
Numer oferty:
34964467273
Cena za m2:
21 321,27 PLN
Dwupokojowy apartament z pięknym widokiem na panoramę Warszawy na Osiedlu Apartamenty Kochanowskiego.
Nowoczesne osiedle zaprojektowane przez znaną pracownię architektoniczną - Jems Architekci.

Mieszkanie przygotowane z dbałością o szczegóły a także z wykorzystaniem miejsca na przechowywanie - wiele szaf wnękowych (przedpokój, sypialnia, łazienka).
Kuchnia z oknem w zabudowie.
Łazienka z wanną, osobną kabiną prysznicową, toaletą, bidetem oraz umywalką z zabudową.
Z salonu jest wyjście na loggię z widokiem na wschód i północ.
Dodatkowo jest zamontowana klimatyzacja.
Mieszkanie jest zadbane. Zostaje zabudowa.

Jest duża odległość od budynków i widać piękną panoramę Warszawy.
Z uwagi na duże okna lokal jest jasny i słoneczny.

Do lokalu przynależy komórka lokatorska - 2.37 m2
Na oddzielnej księdze wieczystej jest wygodne miejsce parkingowe.
Miejsce jest dodatkowo płatne - 60.000 PLN

Apartament będzie dostępny od 1 czerwca 2024.
Jest gotowy do sprzedaży jest komplet dokumentów.

Jeśli szukasz wygodnego, dobrze doświetlonego apartamentu na kameralnym zadbanym osiedlu zadzwoń by ustalić termin wizyty.


Wskaźnik rocznego zapotrzebowania na energię użytkową (EU): 66.17 kWh/(m2 · rok).
Wskaźnik rocznego zapotrzebowania na energię końcową (EK): 85.65 kWh/(m2 · rok).
Wskaźnik rocznego zapotrzebowania na nieodnawialną energię pierwotną (EP): 81.63 kWh/(m2 · rok).
Jednostkowa wielkość emisji CO2 (E CO2): 0.029 t CO2/(m2 · rok).
Udział odnawialnych źródeł energii w rocznym zapotrzebowaniu na energię końcową (U OZE): 0 %.
Nieprawidłowy adres E-mail